BẾP ĐIỆN TỪ KẾT HỢP HÚT MÙI HAFELE HC-IHH80A 539.66.698
Tên : Bếp điện từ kết hợp hút mùi Hafele HC-IHH80A
Mã số : 539.66.698
Xuất Xứ: Germany
Liên hệ: 0932664486

BẾP ĐIỆN TỪ KẾT HỢP HÚT MÙI HAFELE HC-IHH80A 539.66.698 LÀ SỰ KẾT HỢP HOÀN HẢO CHO CĂN BẾP
+ Bếp điện từ kết hợp hút mùi Hafele 539.66.698: điểu khiển cảm ứng chạm hiện đại tinh tế
+ Chức năng tạm dừng Stop & Go trên Bếp điện từ kết hợp hút mùi Hafele 539.66.698
+ Máy hút mùi kết hợp có thể hoạt động hút xả hoặc tuần hoàn
+ Chức năng ghép hai vùng nấu và giữ ấm
THÔNG SỐ KỸ THUẬT CỦA BẾP ĐIỆN TỪ KẾT HỢP HÚT MÙI HAFELE HC-IHH80A 539.66.698
Vùng nấu của bếp điện tử kết hợp hút mùi Hafele HC-IHH80A 539.66.698
+ 1 vùng nấu từ 19x21cm – 1.6/1.85 kW
+ 1 vùng nấu từ 19x21cm – 2.1/3.0 kW
+ C1 vùng nấu điện 21/14 cm, 2.2 kW
+ Có thể kết hợp 2 vùng từ bên phải thành 1 vùng từ lớn: 220×390 mm – 2,2/3,5 kW
+ Có chín cấp độ nấu cho mỗi vùng nấu và chức năng gia nhiệt nhanh
Thiết kế của bếp điện từ kết hợp hút mùi Hafele HC-IHH80A 539.66.698
– Thiết kế mặt kính Schott made in Germany
– Mặt kính vát 4 cạnh sang trọng
– Bảng điều kiển cảm ứng chạm trực tiếp chuẩn
Những chắc năng chính của bếp điện từ kết hợp hút mùi Hafele HC-IHH80A 539.66.698
– Bảng điều khiển cảm ứng, 9 mức gia nhiệt
– Tự nhận diện xoong nồi
– Chức năng gia nhiệt nhanh
– Chức năng ghi nhớ và tạm dừng
– Chức năng ghép hai vùng nấu Bridge function và giữ ấm
– Chức năng tạm dừng Stop&Go
– Chức năng giữ ấm và 3 cấp độ nhiệt
– Máy hút mùi kết hợp có thể hoạt động hút xả hoặc tuần hoàn
– Điều khiển cảm ứng hoạt động của máy hút mùi
– Chức năng tự động tắt theo thời gian cài đặt
– Bộ báo hiệu nhiệt dư 2 cấp độ (H/h)
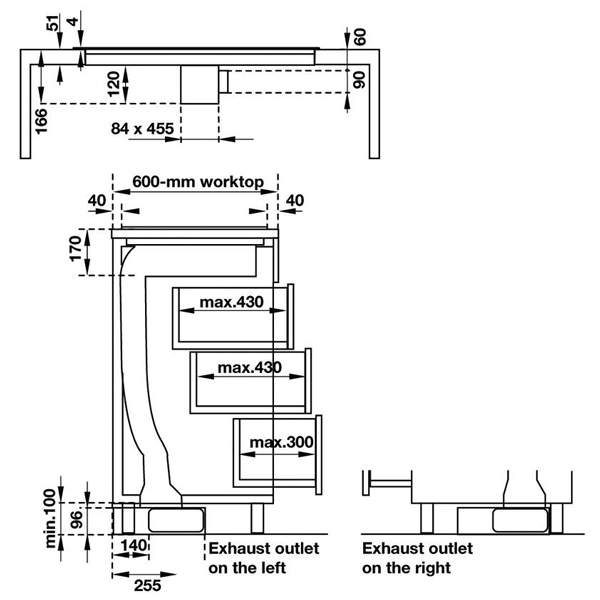
Kích thước sản phẩm Bếp điện từ kết hợp hút mùi Hafele HC-IHH80A 539.66.698
– Kích thước sản phẩm bếp (mm) : 770R x 450S x 68C
– Kích thước sản phẩm hút mùi (mm) : 800R x 520S x 170C mm
– Kích thước cắt đá (mm) : 750R x 500S mm
– Không kèm than hoạt tính
– Công suất hút mùi: 800 m3/h
– Tổng công suất tiêu thụ: 6,1Kw
– Hiệu điện thế: 220 – 240V


Miền Bắc
0823 888 444